İçeriğe atla
+90 532 643 73 70
info@sabanciinsaat.com.tr
Yelaltı Mahallesi 75. Yıl Cumhuriyet Caddesi No:56/A Urla - İzmir
Facebook
Youtube
Instagram
Anasayfa
Kurumsal
Sosyal Sorumluluklar
Kvkk
Satıştaki Projeler
Devam Eden Projeler
Tamamlanan Projeler
Gelecek Projeler
Tasarımdan Gerçeğe
Taahhüt
Projelendirme Hizmeti
Yatırımlar
Urla’da Yaşam
Medya
Blog
Basında Biz
Formlar
Arsa Sahibi Formu
Tedarikçi Formu
Müşteri Bilgi Formu
İnsan Kaynakları Formu
İletişim
Anasayfa
Kurumsal
Sosyal Sorumluluklar
Kvkk
Satıştaki Projeler
Devam Eden Projeler
Tamamlanan Projeler
Gelecek Projeler
Tasarımdan Gerçeğe
Taahhüt
Projelendirme Hizmeti
Yatırımlar
Urla’da Yaşam
Medya
Blog
Basında Biz
Formlar
Arsa Sahibi Formu
Tedarikçi Formu
Müşteri Bilgi Formu
İnsan Kaynakları Formu
İletişim
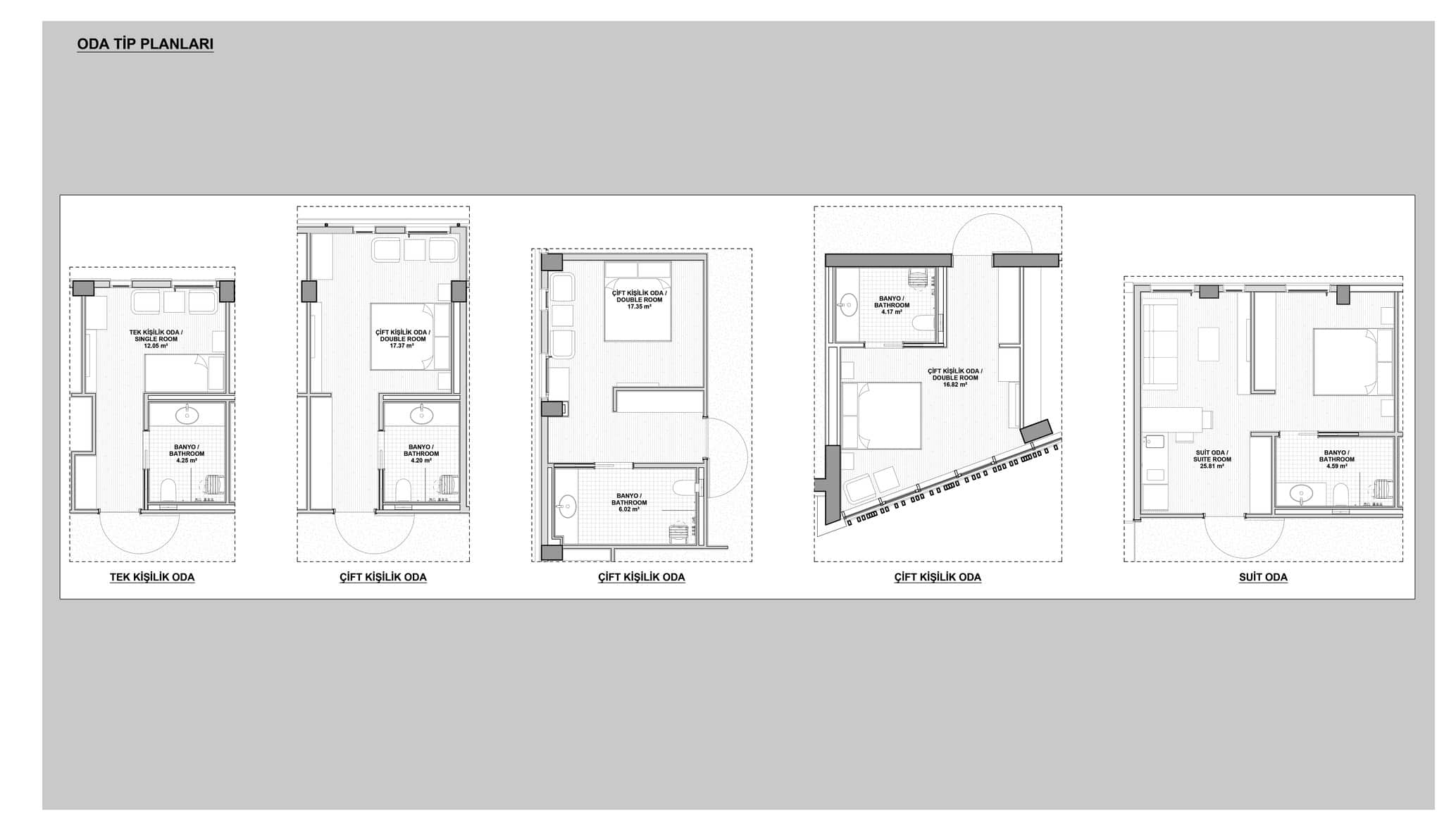
Huzurevi
Yapım Yılı
Lokasyon
Metrekare
Oda Sayısı
Galeri
Whatsapp